Casa Acapu / STUDIO ANDRE LENZA

30/10/2025 | Notícia | ArchDaily

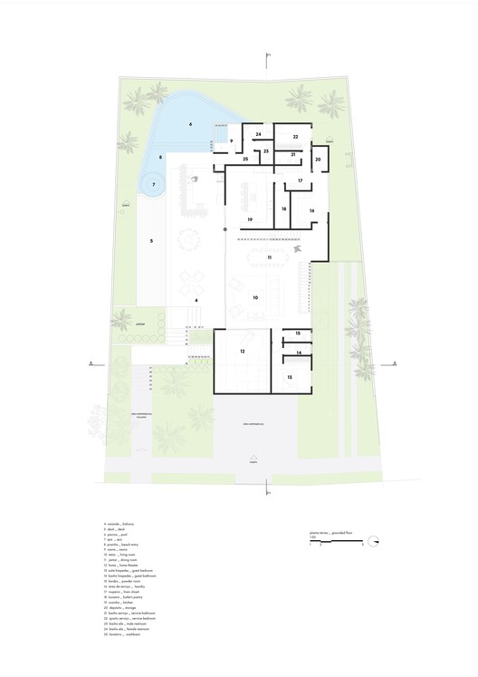
Descrição enviada pela equipe de projeto. Localizada no Residencial Ipês, em Goiâniaa Casa Acapu nasce do encontro entre a volumetria contemporânea e o terreno em desnível, onde arquitetura e natureza se fundem em harmonia. Implantada sobre um aclive de mais de quatro metros, a casa se eleva suavemente sobre a rua, revelando em seus volumes a transição entre o espaço social e o íntimo.

Pensada para um casal que inicia sua vida a dois com o sonho de constituírem uma família, a Casa Acapu traduz o desejo por um lar acolhedor e livre, onde cada ambiente celebra o convívio e a paisagem. Respeitando o desnível do terreno, a volumetria precisou ser constituída por 3 blocos, o bloco inferior da garagem, intermediário da parte social e o superior para o setor íntimo da casa.

No bloco inferior, no nível da rua acontece o acesso à garagem e a escada para o espaço de lazer, sem porta de entrada convencional, assim, as visitas acessam a área gourmet sem a necessidade de passar por dentro da casa.

No pavimento intermediário, a área social se abre em fluidez: sala, varanda gourmet e piscina se integram em um único gesto, desenhando um cenário de convivência. A piscina, posicionada para receber o sol durante todo o dia, torna-se o coração do lazer, refletindo o brilho das tardes de setembro e o calor do cerrado goiano.

A preocupação com plantas naturais do cerrado brasileiro foi um aspecto importante levantamento pela Florentino Paisagismo e a equipe de arquitetura. Plantas cobrem a escadaria de entrada, levando o morador a uma experiencia a cada degrau.

No volume superior, o bloco íntimo repousa perpendicularmente sobre o social, criando um jogo de planos e sombras que valoriza a leveza da composição. As suítes se abrem para as varandas privativas que emolduram o entorno, e a suíte master, voltada para o pôr do sol, se estende a um rooftop de contemplação — um refúgio com vista para o lago e a paisagem do cerrado.

Leia na íntegra

Ao navegar no site você estará concordando com a nossa política de privacidade.

Ok
Fechar modal