15/04/2026 | Notícia | ArchDaily

Descrição enviada pela equipe de projeto. A casa Boa Vista foi pensada para uma família que gosta de receber amigos e fazer festas. Implantada em um lote em aclive, com uma deslumbrante vista para a Serra da Moeda, a parte social da casa foi orientada para a porção frontal do terreno. Por esse motivo, a cozinha e a área de jantar ocupam o espaço central da planta, em um espaço integrado com pé-direito duplo. O restante da casa se organiza ao redor do espaço de convívio, com especial atenção à integração com as áreas externas de lazer.


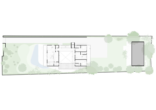
O projeto tira partido da declividade do lote para garantir privacidade aos moradores, por meio do posicionamento da edificação afastada em relação ao alinhamento frontal. O uso generoso do vidro e o deslocamento da área de apoio para a parte traseira do lote garantem o melhor aproveitamento possível da vista e da insolação para a piscina.


Outra importante demanda dos clientes era a conformação de generosas áreas avarandadas que deveriam se comunicar com o espaço interno e gerar um uso fluido entre o interno e o externo. Para isso, foi proposto um desenho orgânico de piso que circunda toda a área social. O piso se mistura ao paisagismo proposto e convida os moradores a ocupar todo o terreno. O bloco dos quartos, posicionado no segundo andar, qualifica as áreas avarandadas ao gerar beirais que garantem sombra e proteção às varandas do térreo.


Construtivamente, o projeto faz uso de uma estrutura mista, com pilares maciços de madeira e vigas primárias metálicas. A estrutura da cobertura é composta por um vigamento em madeira laminada colada e um sistema de montagem a seco, com fechamento em painel wall e manta impermeabilizada. Para garantir o travamento do conjunto, um núcleo rígido em concreto armado garante a estabilidade do conjunto e foi dimensionado para poder receber, futuramente, um elevador caso seja necessário. A laje do segundo pavimento também foi executada com sistema construtivo seco, com a utilização de painel wall e revestimento em tábua corrida de madeira maciça.

Ao fundo do lote, foi construída a edícula, que abriga o espaço de leitura e trabalho, além de um quarto de apoio. Uma série de mobiliários específicos foram desenhados, como estante, escrivaninha e gaveteiros para a guarda de arquivos. A mobília reflete o princípio construtivo da casa e ajuda a dar coesão ao projeto.

Ao navegar no site você estará concordando com a nossa política de privacidade.
Ok