29/04/2026 | Notícia | ArchDaily

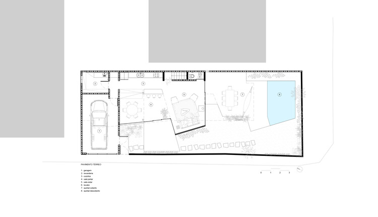
Descrição enviada pela equipe de projeto. Com 225m2 de área construída, a casa localizada no bairro da Pompeia, São Paulo, se estrutura por sistemas construtivos pré-industrializados, blocos pré-moldados e madeira engenheirada, o que foi fundamental para tornar a casa mais leve trazendo economia na etapa das fundações da construção.


A concepção espacial privilegia a iluminação e a ventilação naturais, através de um desenho de um volume geométrico recordado por um vazio central, que oferece uma entrada visual e de iluminação. O partido também constrói a partir do uso mínimo de revestimentos na parte interna, para criar a sensação de equilíbrio, contrapondo as áreas blocos de concreto da casa com a madeira das lajes de CLT (Crosslaminated timber).


O sistema de madeira engenheirada foi desenvolvido e fornecido pela com a Urbem, empresa parceira da 23 Sul em diversos projetos, sendo a casa um protótipo da tecnologia para monitoramento da performance da edificação.


O projeto reúne diferentes sistemas construtivos em suas melhores performances: Blocos de concreto nas paredes externas; estacas de concreto armado na fundação; vigas do primeiro pavimento são metálicas, porque são leves e garantem a altura ideal; as lajes de CLT se encaixam com perfeição nas vigas e criam equilíbrio e conforto, fi cando expostas dentro dos espaços. É preciso destacar o uso da madeira engenheirada em lajes e painéis de vedação, sem geração de resíduos e com redução de riscos no canteiro.

Duas clarabóias cortam a casa dando luminosidade natural aos espaços, que também contam com sistema de ventilação que garante que o ar circule com fl uidez. O pé direito duplo e os grandes painéis de vidro permitem que o paisagismo invada a sala. A varanda e seus recortes ajudam a trazer o jardim e a piscina para dentro. A casa possui também aquecimento solar e geração de energia via placas voltaicas e cisterna para coleta de água da chuva. A fachada é composta por placas de miniwave, que conferem leveza e delicadeza ao acabamento, além de proteger a madeira.

Leia na íntegra
Ao navegar no site você estará concordando com a nossa política de privacidade.
Ok